好市多芳鄰好停車4房店住
1068
萬
42.23
萬/坪
詳細資料
周邊
特色說明
地圖街景
實價登錄
南北台南新化加盟店
(富家樂不動產有限公司)
06-5905135
預約看屋
線上提問
好市多芳鄰好停車4房店住
S2938876
065905135
預約
提問
加入我們
人才招募
加盟店專區
留言諮詢
追蹤清單
Google搜尋
一般會員
帳號
此欄位必填!
密碼
此欄位必填!
登入
送出註冊/登入視同您已閱讀,並同意
權利義務說明內容
註冊
|
忘記密碼
此欄位必填!
此欄位必填!
此欄位必填!
登入
忘記密碼
|
忘記密碼
Email
簡訊
請您輸入店代號及帳號,我們會儘速將您的密碼傳送至您的信箱或手機簡訊。
店代號
帳 號
送出
南北房屋官網
[首頁]
首頁
出售
找售案
買方流程
應繳稅費
房貸試算
買方權益
買方需求留言
買賣百科
履約保證
特約地政士專欄
特約律師專欄
出售須知
賣方流程
應繳稅費
賣方權益
賣方需求留言
買賣百科
履約保證
預售屋
出租
找租案
出租流程
租方權益
承租方權益
出租需求留言
出租百科
實用工具
公告土地現值查詢
重購退土增稅試算
贈與稅試算
內政部實價查詢網
房地合一稅試算
關於我們
公司簡介
免責聲明
服務條款
隱私權聲明
版權宣告
加入我們
活動資訊
活動花絮
房產動態
服務據點
特約代書與廠商
買屋
/
台南市
/
北區
/
好市多芳鄰好停車4房店住
請注意,上方物件照片如有街景,為物件附近環境介紹,非物件本身。
編號:
S2938876
1068
萬
42.23
萬/坪
貸款試算
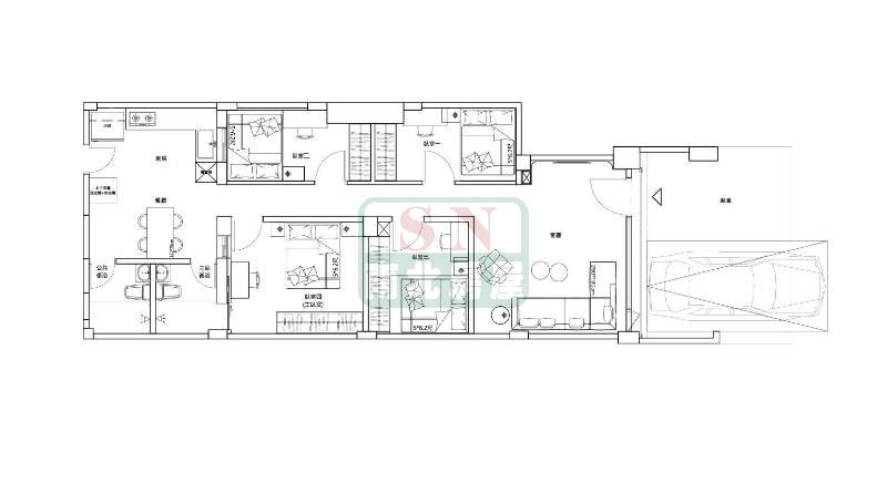
格局
4房 1 廳 2 衛
格局
屋齡
44.5 年
屋齡
建坪
25.29 坪
建坪
地址
北區和緯路四段
型態/類別
公寓 /店住
樓別/樓高
1 /5
主+附
21.49 坪
地坪
7.82 坪
南北台南新化加盟店
(富家樂不動產有限公司)
台南市新化區中山路138號1樓
06-5905135
立即預約看屋
線上提問
先生
小姐
方便聯絡時間
皆可
早上
下午
晚上
我同意條款
隱私權聲明
預約看屋
先生
小姐
我同意條款
隱私權聲明
線上提問
相似物件推薦
好市多旁整新...
1068
萬
建坪:
25.29
3
房
北區和緯路四段
好市多一樓整...
1068
萬
建坪:
25.29
4
房
北區和緯路四段
好市多精心設...
1068
萬
建坪:
25.29
4
房
北區和緯路四段
▲南北文化店...
1068
萬
建坪:
25.29
4
房
北區和緯路四段
物件詳細資料
點閱次數:924次
房屋資訊
車位/備註
庭院車位 自家門口
入門朝向
座東 朝西
使用分區
住宅
現況
空屋
面臨路寬
6 米
建築結構
鋼筋混凝土RC
0000001649
0000001650
0000001651
謄本資料
主建物
21.49 坪
附屬建物
公共設施
3.8 坪
車位坪
地下室
地坪
7.82 坪
謄本主要用途
住商用
*小數點取二位第三位無條件捨去
特色說明
買屋送家電 冷氣 冰箱 電視 洗脫烘洗衣機
廚房 廁所 車庫皆為增建約8坪 使用空間大
門口即可停車 鄰好市多 花園夜市
可店可住 超方便 自用出租 好選擇
地圖/街景
實價登錄